【賃貸物件 店舗・事務所】 愛宕町1丁目貸店舗
![]() |
賃料 | 7万円 | 敷金(保証金)/礼金 | 2ヶ月 ( なし ) / なし | |||
---|---|---|---|---|---|---|---|
交通 |
JR・近鉄 松阪駅駅 徒歩11分 徒歩883m
【バス】 三交バス 愛宕町停
|
||||||
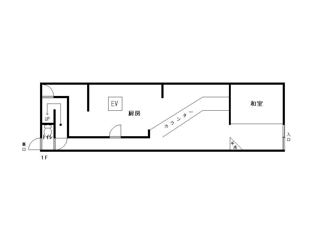
所在地 | 三重県 松阪市 愛宕町 1丁目28、30-3 愛宕町1丁目貸店舗 | ||||||
築年月 | 1959年 7月 | 使用部分面積 |
224.16m2
|
坪数 | 67.81 | ||
-
|
物件詳細情報
交通 |
JR・近鉄 松阪駅駅 徒歩11分 徒歩883m
【バス】 三交バス 愛宕町停
|
||
---|---|---|---|
所在地 | 三重県 松阪市 愛宕町 1丁目28、30-3 愛宕町1丁目貸店舗 | ||
物件種目 | 賃貸物件 店舗・事務所 | ||
賃料 | 7万円 | 管理費等 | - 円 |
敷金/保証金 | 2ヶ月 / なし | 礼金 | なし |
共益費 | なし | 保険等 | 有 |
駐車場 | 無 | ||
備考 |
※申込時、保証会社の審査があります。
保証料:月額総賃料の100%(初年度)
※自治会の規則に従ってください。
※2、3階に雨漏りあり。
※現状有姿での賃貸とします。
※賃料は税込み表示です
|
||
契約期間 | 2年 | 現況 | 空家 |
引渡し | 相談 | 更新料 | |
使用部分面積 |
224.16m2
|
土地面積 |
94.33m2 (公簿)
|
物件番号 | 2633 | 取引態様 | 貸主 |
周辺の地図 |
---|
大きな地図で見る |
※「-」と表示されている項目については、情報提供会社にご確認ください。
表示内容と現状が異なる場合は現状を優先いたします。 PDFをダウンロードする
情報提供会社
![]() |
株式会社ユタカ開発 メールでお問合せ | |||
TEL | 0598-50-3244 | FAX | 0598-50-3111 | |
---|---|---|---|---|
所在地 | 〒515-0015 三重県 松阪市 宮町 238-2 | |||
営業時間 | 9:00~18:00 | 定休日 | 土曜日・日曜日・祝祭日 | |
免許番号 | 三重県知事免許(8)第2201号 |